Is this Melbourne's most exclusive and expensive apartment development?

Mark BaljakJuly 27, 20140 min read

It doesn't exist on the Melbourne City Council register, nor the State register, which represent the two primary methods of monitoring inner Melbourne's major planning applications. Rather a proposed redevelopment of 502 Albert Road, East Melbourne has been listed on DTPLI's heritage register, as the application seeks demolition to part of the adjoining historic East Melbourne Synagogue.

502 Albert Road, East Melbourne served as the Salvation Army Printing Works complex once upon a time and according a report published in the The Age dated 2011, the site was sold to Chinese-based interests during that year for $9.7 million. The intended plans were bought to light once more by Apartments.com.au forum member, Fedsquared.

Is this Melbourne's most exclusive and expensive apartment development?
The sites in question with tower rising behind. Image © DCM

Application details

  • 502 Albert Road, East Melbourne: existing 1901 three-level Romanesque-style building onsite
  • Developer: Woodlink Design and Development
  • Architect: Denton Corker Marshall
  • 27 level residential tower at 88.98 metres
  • ​66 apartments over 2/3/4 bedroom options
  • 87 car parking spaces over basement and podium levels, serviced by car vehicle lift
  • Facilities include cafe/gallery, pool, gym and common area

Heritage consideration

The East Melbourne synagogue is a mid-19th century bluestone and brick building based on the revival Greek Corinthian style. The building is significant as an example of the work of architects Crouch & Wilson, prominent designers of ecclesiastical buildings in Victoria in the nineteenth century.

As the only surviving example of two synagogues designed by the architects, the East Melbourne building demonstrates the denominational diversity that characterised their practice during that time. It is one of a very small number of ecclesiastical buildings that they designed in the Classical tradition.

Roger Gibbins, Urbis

A quid pro quo solution

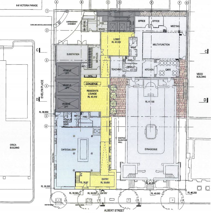
Is this Melbourne's most exclusive and expensive apartment development?
The proposed ground floor layout. Image © DCM

In a solution designed to satisfy both parties, the development calls for the demolition of registered buildings at the rear of the Synagogue at 488 Albert Street East Melbourne in order to provide the intended tower with a viable footprint. The synagogue will contribute part of its land holding to the developer, in return the developer will fully refurbish the East Melbourne Synagogue.

In addition, new facilities over the tower's ground floor will be dedicated to the Synagogue, "Enabling it to provide a comfortable and safe environment for the congregation and visitors. This will enable the synagogue to remain viable, maintaining the congregation into the future."

Furthermore the proposed solution sees three two bedroom apartments, a café and a multi-purpose room seeded to the Synagogue as a means of future income.

Total luxury

From upcoming Spring Street giants to 150 Clarendon Street and Jolimont, the Parliamentary Precinct/Fitzroy Gardens are ringed by luxury apartment developments. Those behind 502 Albert Road have positioned the tower to sit within the ultra high-end of Melbourne's apartment market, with apartment sizes far beyond the norm; in fact some are just plain amazing:

  • Smallest 2BR at combined internal/external: 108sqm
  • Typical 2BR internal/external: average 160sqm approximately
  • Typical 3BR internal/external: average 220sqm approximately
  • Penthouse split over two levels: 4BR at 372sqm internal + 170sqm external
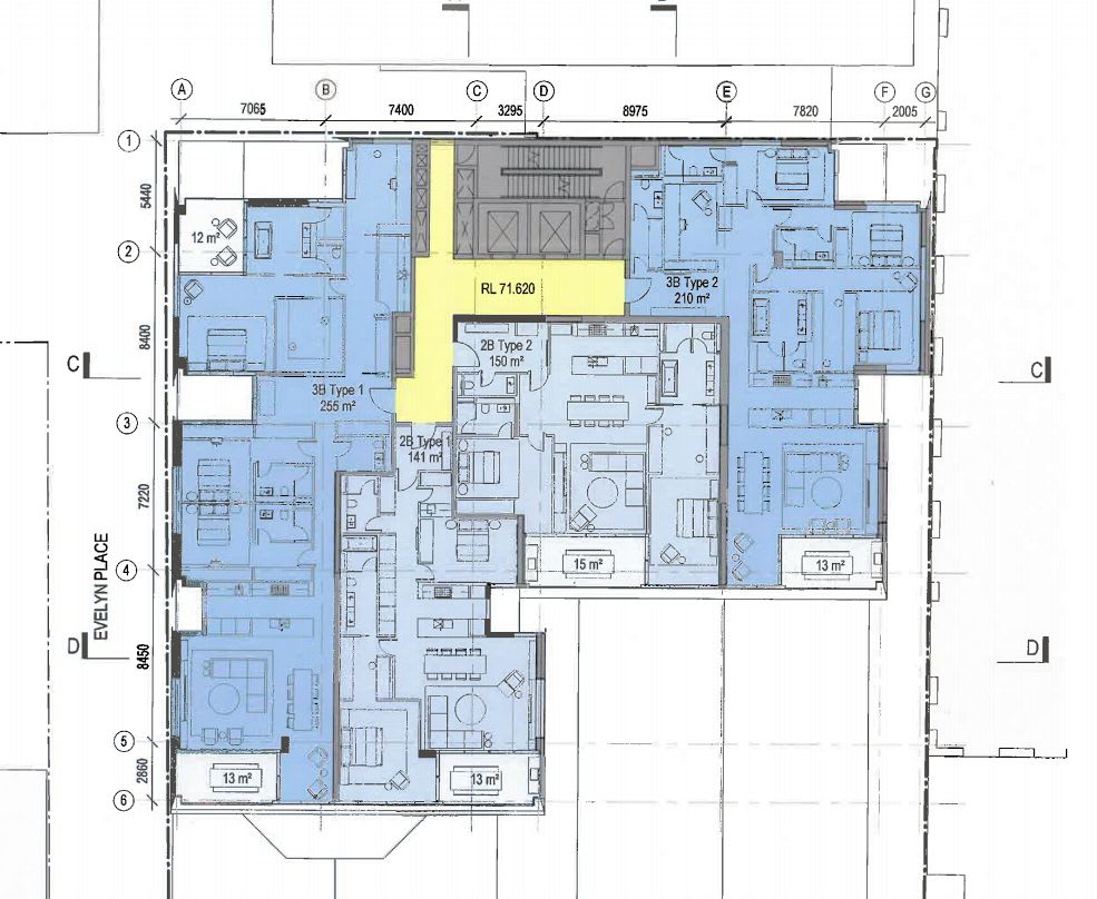
Is this Melbourne's most exclusive and expensive apartment development?
The proposed L10-12 layout. Image © DCM

Applying a modest sales price of $9000 per internal square metre as a rough guide to apartment pricing, a three bedroom abode of 255sqm internal over levels 10-12 would sell for in excess of $2.3 million. Evidently the tower has been positioned to compete with Melbourne's elite residential towers, if not usurp them in the pedigree stakes.

Comment

The tower externally looks to follow the lead of Denton Corker Marshall's 85 Spring Street which is also seeking planning consent, with colour palette and finishes quite similar; blue facades contrasted by lighter block elements. I guess this could be construed as an architect exploring a certain design path or lack of initiative, depends upon your perspective.

As for the few who may call this development home one day, half their luck!

Mark Baljak

Mark Baljak was a co-founder of Urban.com.au. He passed away on Thursday 8th of November 2018 after a battle with cancer. He was 37. Mark was a keen traveller, having visited all six permanently-inhabited continents and had a love of craft beer. One of his biggest passions was observing the change that has occurred in Melbourne over the past two decades. In that time he built an enormous library of photos, all taken by him, which tracked the progress of construction on building sites from across metropolitan Melbourne.